店舗事務所 検索結果(1-48/48件)
上田市上丸子 UP
上田市中央1丁目 UP
上田市中央2丁目 UP
・家賃:100,000円 税込・敷金:180,000円・礼金:100,000円・家賃保証会社必須・火災保険(借家人賠償保険)必須・契約期間3年 更新有・飲食店不可・駐車場:8,000円/月 税込 3台まで相談可能。高さ制限有。・以前の使用履歴:エステ店、本屋・自治会費:10,800円/年・商店街振興組合:事業賦課金3,610円/月、一般賦課金3,110円/月・アーケード使用料:貸主負担・振興組合加入時出資金1万円(初回のみ)・ブレーカー:30アンペア・給湯器なし 借主負担で電気式給湯器設置可能・クーラー:現況、1基有。壊れている、壊れた場合は借主負担で交換・借主負担でリフォーム希望の場合はリフォーム内容を貸主で検討後、回答します。
- 賃料
- 10万円
- 共/礼/敷
- なし/1ヶ月/2ヶ月
- 保証金
- 専有面積
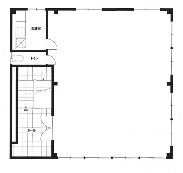
- 54.16m² / 16.38坪
上田市常入1丁目 栄ビル UP
上田市天神1丁目 UP
































































































